

59 000 € H.I. à partir de 260 € / mois *
Maison en pierre authentique à Aubin
Aubin, 12110
- 55 m²
- 3 pièces
- 1 chambre
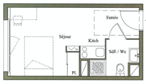
À Auzeville-Tolosane, dans un environnement calme, au second étage d'une résidence récente de 2019 très bien entretenue, un studio d'environ 20m² habitable avec un parking extérieur privatif.
Avec une vue dégagée exposé Sud-ouest, il offre une entrée, une salle d'eau avec toilette de 3 m², une pièce à vivre avec kitchenette et placard de 17 m².
Une laverie automatique est à disposition des résidents dans l'immeuble.
Coté distances : Proche métro Ramonville et Faculté Paul Sabatier. .
Ce logement est vendu occupé avec un loyer de 260,92 euros hors charges
Date de fin de bail : 30/05/2028
Copropriété : 237 lots principaux
Aucune procédure en cours au sein de cette copropriété.
Charges courantes de copropriété : 1 075 euros / an (dont 679 euros à la charge du locataire)
Taxe foncière 530€/an.
Ne manquez pas cette opportunité d'acquérir un bien immobilier de qualité à un prix abordable. Contactez-nous dès aujourd'hui pour organiser une visite et découvrir tous les avantages de ce charmant appartement à Auzeville-Tolosane.
Les informations sur les risques auxquels ce bien est exposé sont disponibles sur le site Géorisques : www.georisques.gouv.fr
Consommations énergétiques
Consommations énergétiques (en énergie primaire) pour le chauffage, la production d'eau chaude sanitaire et le refroidissement.
Emissions de gaz à effet de serre (GES)
Emissions de gaz à effet de serre (GES) pour le chauffage, la production d'eau chaude sanitaire et le refroidissement.
environ 141 € / an *
* Prix moyens des énergies indexés pour l'année 2015 (abonnement compris).
* Calculs effectués sur la base d'un prêt à taux fixe de 3,31% sur une durée de 25 ans avec un apport de 10% et hors assurance. Le coût de l'assurance de prêt dépend du capital assuré, de votre âge, de la durée du prêt, du taux d'intérêt du prêt, de votre questionnaire de santé et/ou médical, et de votre profession. Les calculs et solutions indiqués ne revêtent aucun caractère contractuel et ne sont en aucun cas une offre de prêt. Seuls les banques et organismes de financement sont habilités à accorder un financement. Pour tout crédit immobilier, vous êtes protégés par un délai de réflexion de 10 jours. Aucun versement de quelque nature que ce soit ne peut être exigé d'un particulier avant l'obtention d'un ou de plusieurs prêts d'argent. L'achat est subordonné à l'obtention du prêt. S'il n'est pas obtenu, le vendeur doit rembourser les sommes versées. Un crédit vous engage et doit être remboursé. Vérifiez vos capacités de remboursement avant de vous engager.
Prenez contact avec Sandrine Loudes (EI)
Agent commercial en immobilier
59 000 € H.I. à partir de 260 € / mois *
Aubin, 12110
54 000 € H.I. à partir de 238 € / mois *
Cormenon, 41170
109 000 €
Montmorency, 95160
350 000 € H.I. à partir de 1 545 € / mois *
Vedene, 84270
101 000 € H.I. à partir de 446 € / mois *
Savigny Sur Braye, 41360
70 000 € à partir de 309 € / mois *
Montpellier, 34090